【世田谷区】一棟物件が出ました!
- 住所
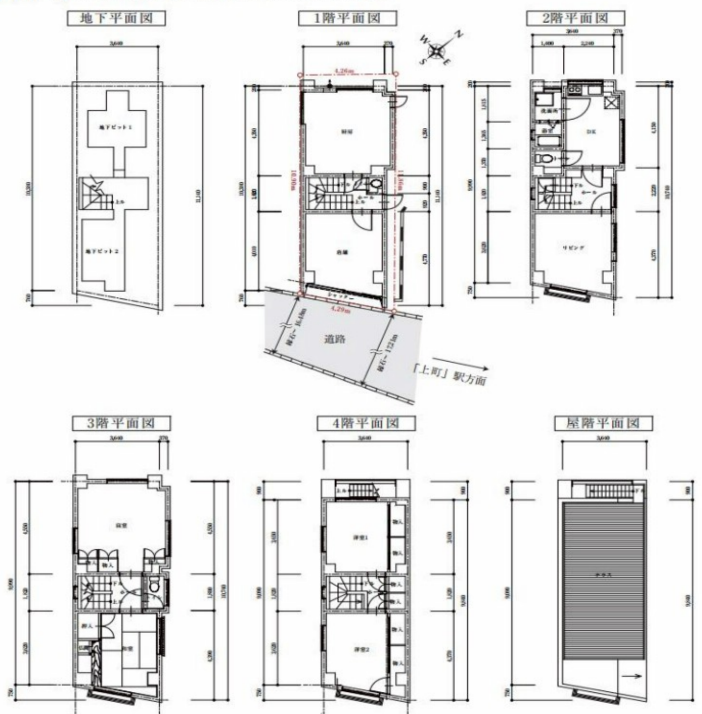
- 東京都世田谷区世田谷2
- 交通
- 東急世田谷線 上町駅 徒歩8分
- 間取り
- 1R
- 築年
- 1980年
- 賃料
- 66万円
- 想定売上
- -
住所:東京都世田谷区世田谷2
最寄駅:東急世田谷線 上町駅 徒歩8分
賃料:660,000円(税込)
敷金:3ヶ月(償却1ヶ月)
礼金:4ヶ月
平米数:152㎡
※詳細はお問い合わせください
物件詳細
- 物件番号
- TA4809
- 賃料
- 66万円
- 敷金
- 3ヶ月
- 礼金
- 4ヶ月
- 管理費
- - 円
- 物件種別
- 事務所・店舗
- 築年
- 1980年
- 総戸数
- 間取り
- 1R
- 所在階/総階建
- 4階建


