【北区】戸建物件が出ました!!
- 住所
- 東京都北区上十条
- 交通
-
JR埼京線 十条駅 16分
- 間取り
- 3DK
- 築年
- 1966年
- 賃料
- 16.5万円
- 想定売上
- -
東京都北区上十条
最寄駅:JR埼京線 十条駅 16分
賃料:165,000円
敷金:2ヶ月(償却1ヶ月)
礼金:4ヶ月
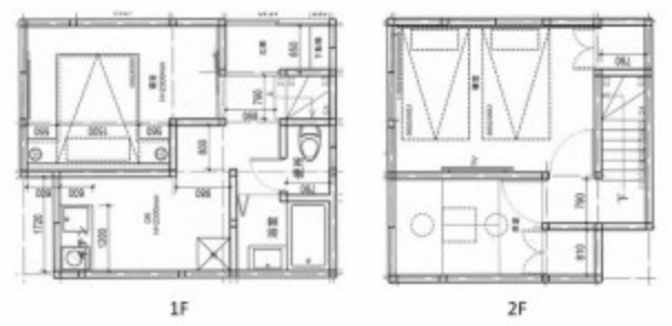
間取り:3DK(43㎡)
※詳細はお問い合わせください。
物件詳細
- 物件番号
- TA4754
- 賃料
- 16.5万円
- 敷金
- 2ヶ月
- 礼金
- 4ヶ月
- 管理費
- 1.1万円
- 物件種別
- 戸建て
- 築年
- 1966年
- 総戸数
- 間取り
- 3DK
- 所在階/総階建
- 2階建
