【墨田区】戸建物件が出ました!!
- 住所
- 東京都台東区浅草
- 交通
- つくばエクスプレス 浅草駅 徒歩5分
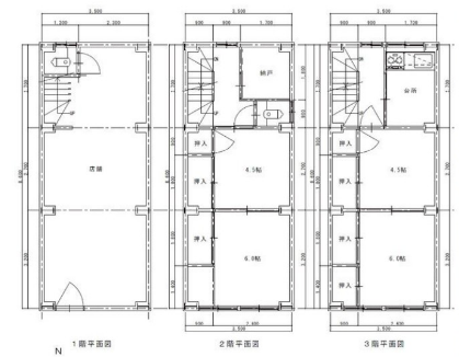
- 間取り
- 4LDK
- 築年
- 1968年
- 賃料
- 71.5万円
- 想定売上
- -
東京都台東区浅草
つくばエクスプレス 浅草駅 徒歩5分
賃料:715,000円(税込)
礼金:4ヵ月
保証金:8ヶ月(償却2ヶ月)
広さ:約95㎡
※詳細はお問い合わせください。
物件詳細
- 物件番号
- HB1134
- 賃料
- 71.5万円
- 敷金
- 8ヶ月
- 礼金
- 4ヶ月
- 管理費
- - 円
- 物件種別
- 戸建て
- 築年
- 1968年
- 総戸数
- 間取り
- 4LDK
- 所在階/総階建
- 4階建


