【東十条駅】徒歩3分!戸建物件が出ました!
- 住所
- 東京都北区中十条3
- 交通
- JR京浜東北線 東十条駅 徒歩3分
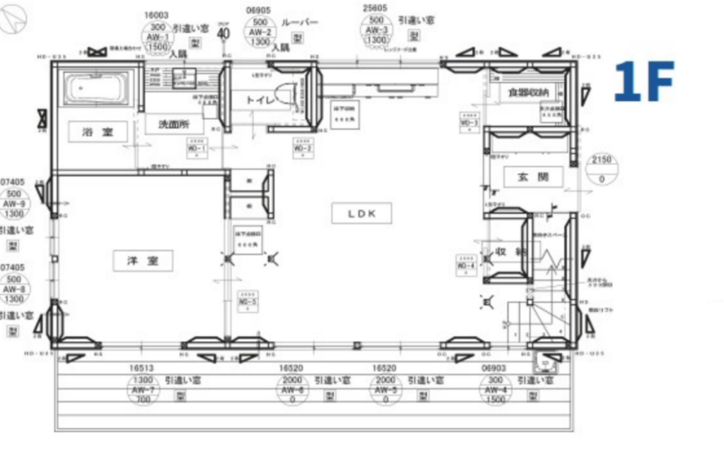
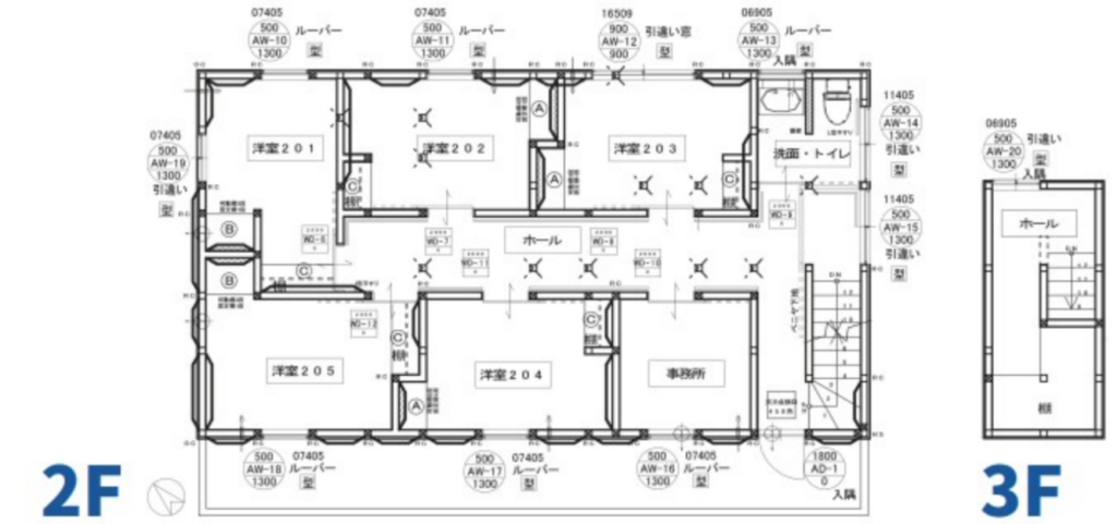
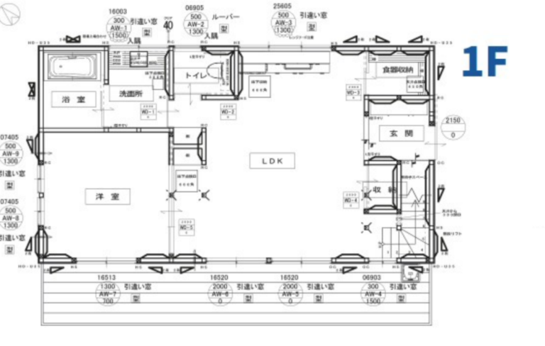
- 間取り
- 5DK
- 築年
- 1972年
- 賃料
- 44万円
- 想定売上
- -
東京都北区中十条3
最寄駅:JR京浜東北線 東十条駅 徒歩3分
賃料:44万円(税込)
敷金:1ヶ月
礼金:4ヶ月
延べ床:128㎡
※詳細はお問い合わせください。
物件詳細
- 物件番号
- TA4704
- 賃料
- 44万円
- 敷金
- 1ヶ月
- 礼金
- 4ヶ月
- 管理費
- - 円
- 物件種別
- 戸建て
- 築年
- 1972年
- 総戸数
- 1
- 間取り
- 5DK
- 所在階/総階建
- 2





